那覇空港まで車で10分、国際通りも徒歩15分、慶良間諸島などの離島への船が出ているとまりんにも徒歩2分とアクセス抜群の立地です!
現在月854,000円で一括借り上げ中(5月まで)
お引渡し時期:即日
取引態様:専任媒介
土地権利:所有権
用途地域:商業地域
建物構造:6階建RC造
土地面積:105.63㎡
建物面積(延床面積):270.32㎡
建蔽率80% /容積率600%
那覇空港まで車で10分、国際通りも徒歩15分、慶良間諸島などの離島への船が出ているとまりんにも徒歩2分とアクセス抜群の立地です!
現在月854,000円で一括借り上げ中(5月まで)
お引渡し時期:即日
取引態様:専任媒介
土地権利:所有権
用途地域:商業地域
建物構造:6階建RC造
土地面積:105.63㎡
建物面積(延床面積):270.32㎡
建蔽率80% /容積率600%
| 価 格 | ー |
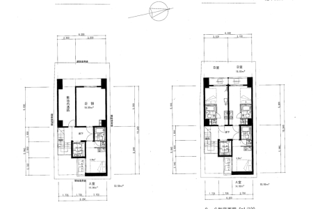
| 間取り・専有面積 | 1R・50.14㎡(店舗 19.50㎡ 全16室+店舗一室) |
| 所在地 | 那覇市前島3丁目2-10 |
| 交 通 | 「とまりん前」バス停より徒歩2分 |
| 築年数 | ー |
| 管理費 | ー |
| 修繕積立金 | ー |